Un proiect de mare importanță pentru comunitatea brădeană prinde contur: la Brad va fi construit un Centru de îngrijiri paliative, o investiție necesară și mult așteptată, care va completa infrastructura medicală a municipiului.

Primăria municipiului Brad, în calitate de lider de proiect, împreună cu Spitalul Municipal Brad – partener în implementare –, a obținut o finanțare nerambursabilă în valoare de 12.265.579,55 lei (cu TVA), asigurată prin Fondul European de Dezvoltare Regională, la care se adaugă cofinanțarea municipiului Brad, în cuantum de 259.317,94 lei (cu TVA).
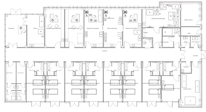
Noul centru va fi construit pe strada Horia, pe terenul unde a funcționat cândva Școala Generală nr. 2. Clădirea modernă va fi dotată cu echipamente și facilități conforme celor mai noi standarde medicale și va dispune de 15 paturi pentru îngrijiri paliative, repartizate în 8 saloane confortabile și adaptate nevoilor pacienților.
„După semnarea contractului de finanțare, vom demara procedura de achiziție publică pentru execuția lucrărilor. Ne dorim ca în anul 2026 să putem începe efectiv construcția centrului, un obiectiv esențial pentru zona Brad”, au precizat reprezentanții administrației locale.
Serviciile de paliație vin în sprijinul bolnavilor care necesită tratamente și îngrijiri speciale, oferind confort și sprijin medical într-o etapă delicată a vieții. În paralel, un proiect similar se va derula și la Sanatoriul de Pneumoftiziologie Brad, cu sprijinul Consiliului Județean Hunedoara, extinzând astfel capacitatea de îngrijire la nivelul întregii zone.
Inițiativa demonstrează preocuparea constantă a autorităților locale pentru îmbunătățirea calității serviciilor medicale și pentru crearea unei infrastructuri moderne, în slujba oamenilor.
Reprezentanții Primăriei Brad au transmis mulțumiri tuturor celor implicați – specialiști, consultanți, proiectanți, membri ai Asociației „Moții – Țara de Piatră” și parteneri –, subliniind că succesul acestei etape reprezintă doar începutul unui proiect de suflet pentru întreaga comunitate.
Cătălina Neag














Views Today : 9057
Views Yesterday : 11541
Views Last 7 days : 78568
Views This Month : 148764
Views This Year : 1728468
Total views : 6010156